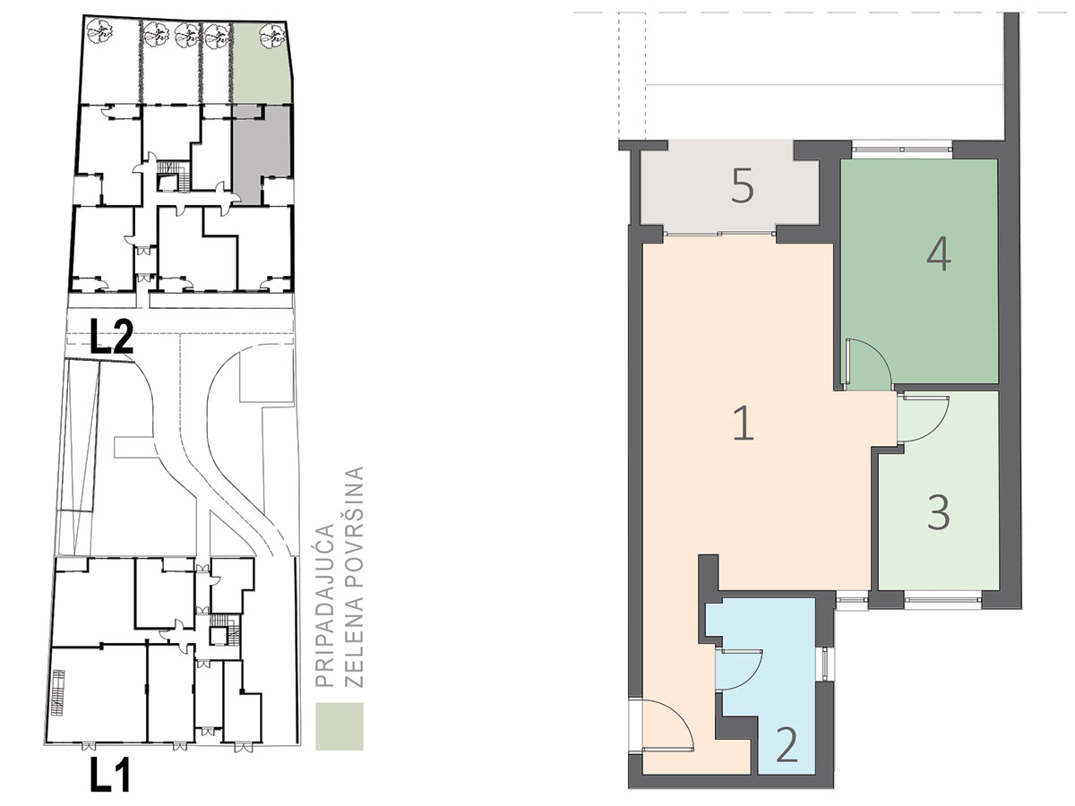
Dvoiposoban stan / PR sprat / stan 6

Prodajna površina 53.68 m2

Ukoliko Vam je potrebno uređenje stana sarađujemo sa

Kontaktirajte nas

Ukoliko imate pitanja vezano za projekat, finansiranje, način kupovine slobodno nas kontaktirajte i pozvaćemo vas u najkraćem roku.
Direktna prodaja stanova.

Ovaj sajt koristi "kolačiće" kako bi se obezbedilo bolje korisničko iskustvo. Ako želite da blokirate "kolačiće", molimo podesite svoj pretraživač.